Контакты
Этапы работ
Стоимость услуг
Проекты
О студии
О студии
Проекты
Стоимость услуг
Этапы работ
Контакты
Меню
Дизайн-проект для александры и дмитрия
Элегантный интерьер с нотками парижского шика
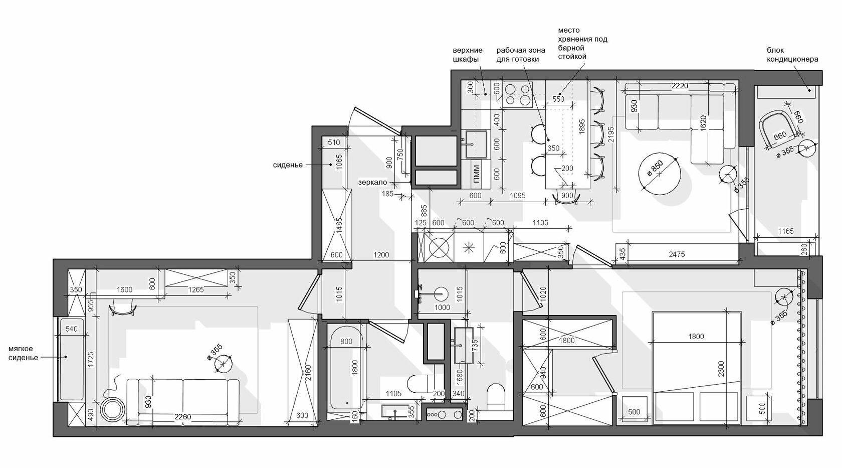
П Л А Н И Р О В К А
П Р И Х О Ж А Я
Оцените помещение:
0
0
0
К У Х Н Я - Г О С Т И Н А Я
Оцените помещение:
0
0
0
Б А Л К О Н
Оцените помещение:
0
0
0
С П А Л Ь Н Я
Оцените помещение:
0
0
0
В А Н Н А Я
Оцените помещение:
0
0
0
Г А Р Д Е Р О Б
Оцените помещение:
0
0
0
К А Б И Н Е Т
Оцените помещение:
0
0
0
С А Н У З Е Л
Оцените помещение:
0
0
0
Cкоро...
С ЛЮБОВЬЮ,
QUINTESSENCE!
Made on
Tilda